3-комнатная квартира, 92 м²

ID: 58889 Обновлено: 29.09.2025 г.
Сочи, Центральный район, микрорайон Новый Сочи, Санаторная улица На карте
Стоимость 17 000 000 ¤ 184 783 ¤/м²
  • Площадь (общая) 92 м²
  • Тип недвижимости Квартира
  • Этаж / Этажность 4 / 5
  • Количество комнат 3
Рассчитать ипотеку
Чтобы получить подробную информацию по данному предложению нажмите
Консультация по объекту:
  1. Цена 17 000 000 ¤
  2. Количество комнат 3
  3. Тип недвижимости Квартира
  4. Этаж 4
  5. Этажность 5
  6. Вид на море Да
  7. Расстояние до моря 1 500 м
  1. Тип дома Панельный
  2. Площадь (общая) 92 м²
  3. Площадь (кухня) 8 м²
  4. Отделка Требует ремонта
  5. Планировка Раздельные
  6. Санузел Совмещенный

Подробное описание

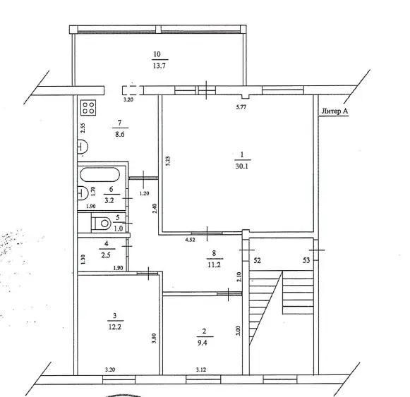
3-х комнатная просторная светлая квартира общей площадью 92 кв.м. Удобная планировка, все комнаты раздельные: зал 30 кв. м, 2 спальни 12 и 9 кв. м, кухня 8.5, лоджия 13.7 кв. м, кладовка 2.5 кв. м, раздельный санузел. Есть вся необходимая для жизни мебель. Вид из окна простирается на море и зелень. Квартира частично требует косметического ремонта. Дом панельный из 5-ти этажей, на котором всего по 2 квартиры. Большая парковка. Квартира находится в микрорайоне Новый Сочи. Данный район является частью престижного Центрального района города-курорта. Территория занимает значительную часть побережья Черного моря. Инфраструктура рядом: прекрасно оборудованные чистые пляжи находятся в 10-ти минутной пешей доступности, парк «Ривьера», летняя резиденция президента - «Бочаров ручей», остановка, магазины, аптеки, поликлиники, школы, детские сады- в шаговой доступности. Квартира идеально подойдет как для отдыха, так и для собственного проживания.

Записаться на онлайн показ

Для иногородних покупателей мы предлагаем услугу дистанционной покупки недвижимости в Сочи, которая позволит сэкономить время и деньги на дорогу и проживание. Мы продумали всё, чтобы упростить процесс покупки и сделать его максимально комфортным.

  • Дистанционные консультации
  • Сопровождение этапов сделки
  • Онлайн-экскурсии по объекту
  • Юридическая чистота
  • Экономия Вашего бюджета

Объект на карте

Сочи, Центральный район, микрорайон Новый Сочи, Санаторная улица

Рассчитайте ипотеку на данный объект

Укажите ваши параметры и наши специалисты подготовят расчет по вашему кредиту в течение 15 минут

Устали искать? Поможем с выбором!

Ответьте на 5 простых вопросов и мы направим вам подборку из 3-5 вариантов по вашим параметрам, всего через 15 минут