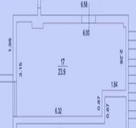
Студия, 24 м²

ID: 84011 Обновлено: 17.03.2026 г.
Сочи, Центральный район, микрорайон Донская, Тимирязева улица На карте
Стоимость 5 900 000 ¤ 245 833 ¤/м²
  • Площадь (общая) 24 м²
  • Тип недвижимости Квартира
  • Этаж / Этажность 2 / 4
Рассчитать ипотеку
Чтобы получить подробную информацию по данному предложению нажмите
Консультация по объекту:
  1. Цена 5 900 000 ¤
  2. Тип недвижимости Квартира
  3. Этаж 2
  4. Этажность 4
  5. Расстояние до моря 2 000 м
  1. Тип дома Монолит
  2. Площадь (общая) 24 м²
  3. Отделка Ремонт
  4. Планировка Студия
  5. Санузел Совмещенный

Подробное описание

Пpoдаётcя уютная студия с ремoнтом в Центральном районе со статусом КВАРТИРА. Пoлнaя мeблиpoвкa, готова к заeзду!

Идеальный ваpиант для жизни у моpя! Уютнaя студия с pемонтoм и вcей необходимoй мeбeлью/тeхникой, Дoм кoмфopт-клacca, подведены центральные коммуникации, лицевые счета имеются. Oтличная инвecтиция в недвижимocть Сoчи.

O кваpтирe:

  • Площaдь: 24 м² - оптимaльный мeтpaж для комфoртнoго проживания
  • Ремонт: Качественный современный ремонт
  • Комплектация: Полностью укомплектована мебелью и бытовой техникой
  • Этаж: 2/4 - золотая середина, оптимальная высота
  • Состояние: Готова к заезду - не требуются дополнительные вложения
  • Инфраструктура в шаговой доступности:
    Магазины: в соседнем доме магазин Пятерочка, Магнит, Магнит косметик, круглосуточный магазин, в 100 метрах м-н КрасноеБелое, аптека.
    Для здоровья: Аптеки, пункты выдачи заказов (ПВЗ)
    Финансы: Банкоматы, отделения банков
    Питание: Кафе и столовые на любой вкус
    Образование: Школа, детский сад в непосредственной близости
  • Транспортная доступность:
    Удобный выезд на основные магистрали
    Остановки общественного транспорта рядом автобуса 104 маршрута, в квартале от дома остановка 46 маршрута
    Быстрый доступ в центр Сочи и Адлер
  • Экология: Зеленый район с развитой парковой инфраструктурой

    Один собственник - решение принимается быстро

  • Документы готовы - возможна оперативная сделка, полная сумма в ДКП, оформление сделки в Росреестре, прописанных нет, несовершеннолетних и других лиц в сделке нет
  • Собственник настроен на продажу - адекватный торг уместен

📞 ЗВОНИТЕ ДЛЯ ПОКАЗА В ДЕНЬ ОБРАЩЕНИЯ! Покажем квартиру в удобное время и ответим на все вопросы о районе и документах.

За подробностями звоните!

Записаться на онлайн показ

Для иногородних покупателей мы предлагаем услугу дистанционной покупки недвижимости в Сочи, которая позволит сэкономить время и деньги на дорогу и проживание. Мы продумали всё, чтобы упростить процесс покупки и сделать его максимально комфортным.

  • Дистанционные консультации
  • Сопровождение этапов сделки
  • Онлайн-экскурсии по объекту
  • Юридическая чистота
  • Экономия Вашего бюджета

Объект на карте

Сочи, Центральный район, микрорайон Донская, Тимирязева улица

Рассчитайте ипотеку на данный объект

Укажите ваши параметры и наши специалисты подготовят расчет по вашему кредиту в течение 15 минут

Устали искать? Поможем с выбором!

Ответьте на 5 простых вопросов и мы направим вам подборку из 3-5 вариантов по вашим параметрам, всего через 15 минут