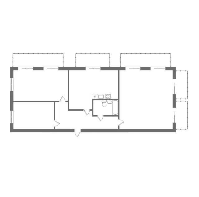
2-комнатная квартира, 105.2 м²

ID: 44977 Обновлено: 16.03.2025 г.
Сочи, Адлерский район, микрорайон Курортный Городок, Ленина, ЖК Корона На карте
Стоимость 37 346 000 ¤ 355 000 ¤/м²
  • Площадь (общая) 105,2 м²
  • Тип недвижимости Квартира
  • Этаж / Этажность 5 / 17
  • Количество комнат 2
Рассчитать ипотеку
Чтобы получить подробную информацию по данному предложению нажмите
Консультация по объекту:
  1. Цена 37 346 000 ¤
  2. Количество комнат 2
  3. Тип недвижимости Квартира
  4. Этаж 5
  5. Этажность 17
  6. Расстояние до моря 146 м
  1. Новостройка ЖК Корона
  2. Тип дома Монолит
  3. Площадь (общая) 105,2 м²
  4. Отделка Черновая
  5. Планировка Свободная

Подробное описание

Предлагается к продаже квартира в ЖК "Корона". ЖК "Корона" элитный жилой комплекс в Адлере, мкр. Курортный городок, ул. Ленина 219/ 5В. Всего 10 минут ходьбы до моря (300 метров). Статус - "квартира".
Здание состоит из двух подъездов: подъезд 1 (квартиры от 33,8 кв.м - 944,8 кв.м), подъезд 2 (квартиры площадью от 35,5 кв.м до 132,8 кв.м). Предусмотрена рассрочка платежа.
В состав жилого комплекса входит SPA-комплекс: бассейн, сауна, солевые кабины, инфракрасная сауна, турецкая баня Хамам. Будущие владельцы квартир могут приятно провести время в кафе, ресторане или воспользоваться услугами бильярдной. На закрытой придомовой территории есть небольшая детская площадка.
Водоснабжение, электричество, канализация - городские сети, центральная система кондиционирования. Есть собственная газовая котельная. В каждом подъезде - 2 пассажирских лифта, 1 грузовой. Комплекс оснащен оптоволокном, предусмотрено спутниковое ТВ. Безопасность жильцов обеспечивается службой охраны, системой видеонаблюдения; услуги консьержа.
Паркинг находится в цокольном этаже и на придомовой территории.
Ближайшие объекты городской инфраструктуры: пансионат "Весна", аквапарк "Амфибиус", "Океанариум", многочисленные санатории; отделение Сбербанка; кафе, рестораны; теннисные корты, волейбольные площадки.

Записаться на онлайн показ

Для иногородних покупателей мы предлагаем услугу дистанционной покупки недвижимости в Сочи, которая позволит сэкономить время и деньги на дорогу и проживание. Мы продумали всё, чтобы упростить процесс покупки и сделать его максимально комфортным.

  • Дистанционные консультации
  • Сопровождение этапов сделки
  • Онлайн-экскурсии по объекту
  • Юридическая чистота
  • Экономия Вашего бюджета

Объект на карте

Сочи, Адлерский район, микрорайон Курортный Городок, Ленина, ЖК Корона

Рассчитайте ипотеку на данный объект

Укажите ваши параметры и наши специалисты подготовят расчет по вашему кредиту в течение 15 минут

Устали искать? Поможем с выбором!

Ответьте на 5 простых вопросов и мы направим вам подборку из 3-5 вариантов по вашим параметрам, всего через 15 минут