Таунхаус, 242 м²

ID: 62117 Обновлено: 17.11.2025 г.
Сочи, Хостинский район, микрорайон Соболевка, Тюленева улица На карте
Стоимость 41 280 000 ¤
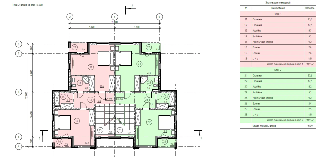
  • Площадь строения 242 м²
  • Этажность 3
  • Тип дома Железобет. с блочным заполнением
  • Отопление Газ
  • Отделка Черновая
Рассчитать ипотеку
Чтобы получить подробную информацию по данному предложению нажмите
Консультация по объекту:
  1. Цена 41 280 000 ¤
  2. Этажность 3
  3. Расстояние до моря 2 000 м
  4. Отделка Черновая
  5. Количество санузлов 2
  6. Водоснабжение Есть
  7. Канализация Есть
  8. Газификация Есть
  1. Тип недвижимости Таунхаус
  2. Площадь строения 242 м²
  3. Площадь участка 3.5 сотки
  4. Тип дома Железобет. с блочным заполнением
  5. Отопление Газ
  6. Свет/Электричество Есть
  7. Целевое назначение ИЖС

Подробное описание

Продаю готовый таун-хаус, в завершающей стадии, комфорт класса, расположен в тихом, но в тоже время развитом микрорайоне, рядом два супермаркета, салон красоты, парикмахерская, товары для дома, мясная лавка, футбольное поле, детские площадки, остановка общественного транспорта рядом.

Хорошая транспортная развязка, возможно быстро добраться в любой район города, выезд на объездную дорогу, дублер Курортного проспекта и на сам Курортный проспект.

До морского побережья, центральной прогулочной набережной 2 км (7 минут на машине).

Коммуникации централизованные: газ, свет, вода, канализация. Огороженная территория, ландшафтное озеленение, парковка.

Записаться на онлайн показ

Для иногородних покупателей мы предлагаем услугу дистанционной покупки недвижимости в Сочи, которая позволит сэкономить время и деньги на дорогу и проживание. Мы продумали всё, чтобы упростить процесс покупки и сделать его максимально комфортным.

  • Дистанционные консультации
  • Сопровождение этапов сделки
  • Онлайн-экскурсии по объекту
  • Юридическая чистота
  • Экономия Вашего бюджета

Объект на карте

Сочи, Хостинский район, микрорайон Соболевка, Тюленева улица