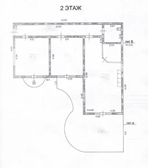
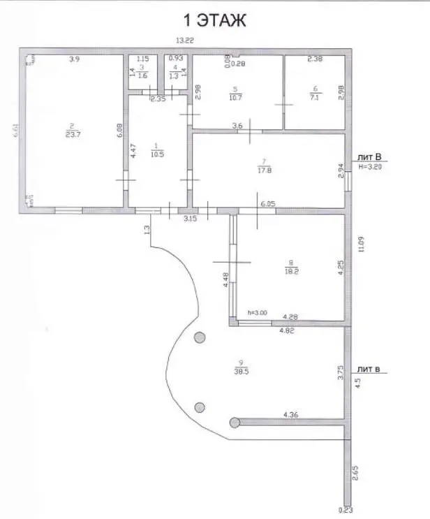
Дом, 282.8 м²

ID: 68365 Обновлено: 17.11.2025 г.
Сочи, Лазаревский район, посёлок городского типа Дагомыс, Семашко На карте
Стоимость 36 500 000 ¤
  • Площадь строения 282,8 м²
  • Этажность 3
  • Тип дома Железобет. с блочным заполнением
  • Отопление Газ
  • Отделка Хорошее
Рассчитать ипотеку
Чтобы получить подробную информацию по данному предложению нажмите
Консультация по объекту:
  1. Цена 36 500 000 ¤
  2. Этажность 3
  3. Расстояние до моря 700 м
  4. Отделка Хорошее
  5. Количество санузлов 5
  6. Водоснабжение Есть
  7. Канализация Есть
  8. Газификация Есть
  1. Тип недвижимости Дом
  2. Площадь строения 282,8 м²
  3. Площадь участка 3.7 сотки
  4. Тип дома Железобет. с блочным заполнением
  5. Отопление Газ
  6. Свет/Электричество Есть
  7. Целевое назначение ИЖС

Подробное описание

Предлагаю действующий мини отель с бассейном , общей площадь 369,3 кв м с террасами и балконами.

Расположен в Дагомысе рядом с санаторием "Семашко" и 700 м от моря.

Функционирует успешно несколько лет, есть постоянные гости.

На территории бассейн с зоной отдыха, патио с барбекю, ухоженный участок с декоративными растениями.

Коммуникации все центральные, интернет, дополнительно установлено 3 фазы со стабилизаторами на каждой из них.

Всего 7 полностью укомплектованных номеров, от 20 кв м до 45 кв м.

Часть номеров имеет свой с/узел и кухню.

Как бонус возможно приобрести соседний участок снизу, оформить сервитут и получить единый жилой комплекс с выходом на первую линию домов.

Записаться на онлайн показ

Для иногородних покупателей мы предлагаем услугу дистанционной покупки недвижимости в Сочи, которая позволит сэкономить время и деньги на дорогу и проживание. Мы продумали всё, чтобы упростить процесс покупки и сделать его максимально комфортным.

  • Дистанционные консультации
  • Сопровождение этапов сделки
  • Онлайн-экскурсии по объекту
  • Юридическая чистота
  • Экономия Вашего бюджета

Объект на карте

Сочи, Лазаревский район, посёлок городского типа Дагомыс, Семашко